Property
Beds
3
Full Baths
2
1/2 Baths
None
Year Built
2011
Sq.Footage
2,433
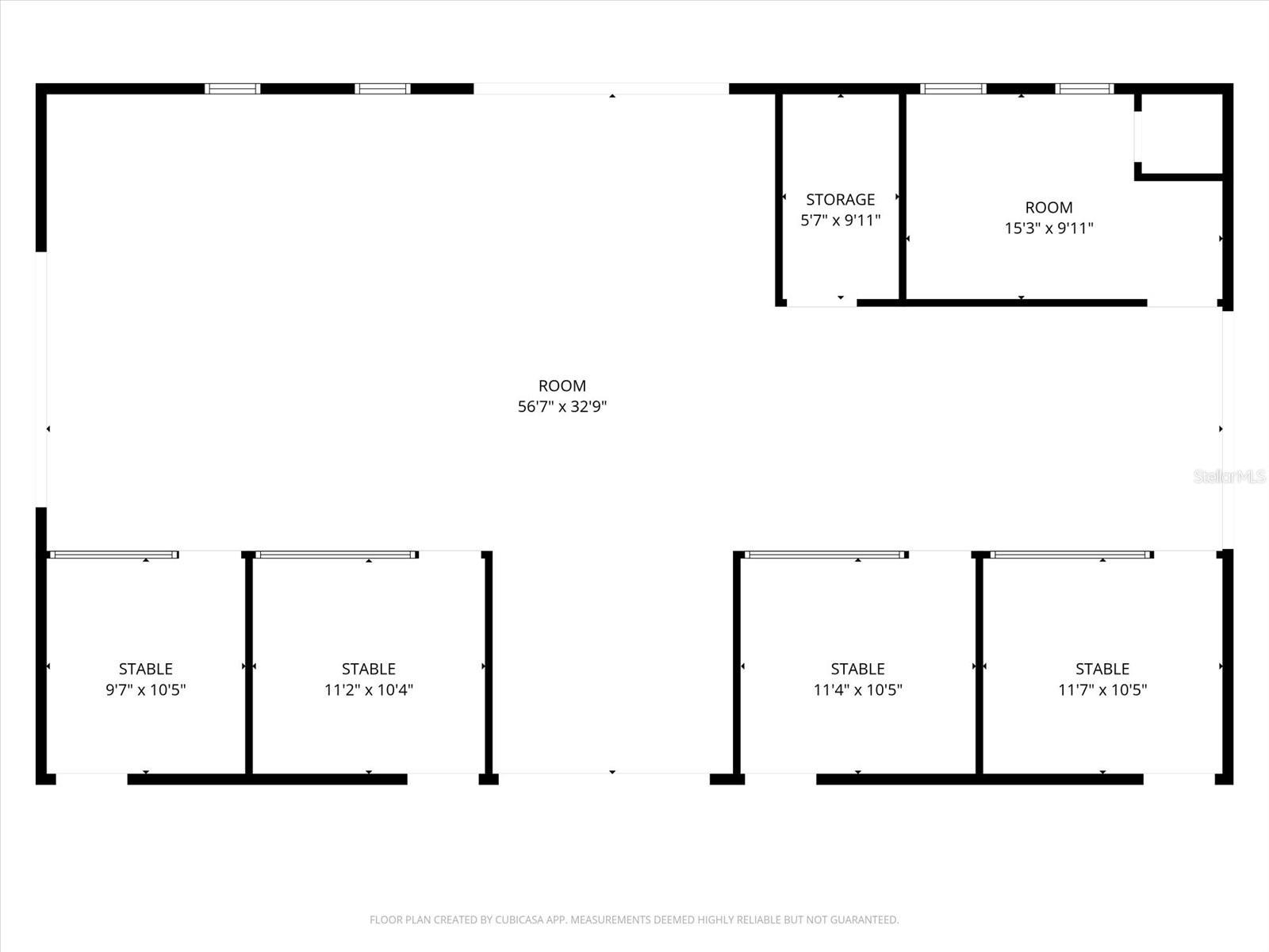
Experience the perfect blend of country living and modern luxury at this exceptional 5 acre estate located on the highly desirable Hawkins Road in Sarasota. Designed with both comfort and functionality in mind, this property offers everything for the equestrian or those seeking space, privacy and premium amenities. The main residence, built in 2011, offers approximately 2,433 square feet of living space with 3 bedrooms and 2 bathrooms and is equipped with sprayed insulation, impact doors and windows, and a whole house generator, ensuring energy efficiency and peace of mind. A renovated kitchen (2018) highlights updated cabinetry, countertops, and appliances, seamlessly blending modern finishes with everyday convenience. Additional upgrades include gutters, plant irrigation, and two tankless hot water heaters. A detached three car garage with spray insulation complements the circular drive, offering ample parking and accessibility. Outdoors, enjoy a resort style Lucas Lagoon pool, ideal for relaxing or entertaining. For equestrian enthusiasts, the property features three fenced pastures, a round pen, and a newly constructed four stall barn built of rough cut cypress with 12x12 stalls, automatic waterers, and individual attached runoffs. The barn also includes a tack room and office, providing functionality and charm. Additional highlights include an electric gated entrance, a 500 gallon propane tank, and an RV disconnect for added convenience. Every detail of this property was thoughtfully planned, from the efficient systems to the elegant outdoor living spaces, making it a true Sarasota gem that perfectly combines luxury, lifestyle and rural tranquility.
Features & Amenities
Interior
-
Other Interior Features
Crown Molding, High Ceilings, Open Floorplan, Stone Counters, Tray Ceiling(s), Walk-In Closet(s)
-
Total Bedrooms
3
-
Bathrooms
2
-
Cooling YN
YES
-
Cooling
Central Air
-
Fireplace YN
YES
-
Heating YN
YES
-
Heating
Central, Electric
-
Pet friendly
Yes
Exterior
-
Garage
Yes
-
Garage spaces
5
-
Construction Materials
Block, Stucco
-
Other Exterior Features
Lighting, Rain Gutters, Storage
-
Parking
Boat, Circular Driveway, Driveway, Garage Door Opener, Guest, Open, Oversized, RV Access/Parking, Workshop in Garage, Attached
-
Patio and Porch Features
Deck, Patio, Porch, Screened
-
Pool
Yes
-
Pool Features
Gunite, In Ground, Screen Enclosure, Solar Heat, Private
-
Waterfront YN
NO
-
View
Pool
Area & Lot
-
Lot Features
Flag Lot, Landscaped, Level, Private
-
Lot Size(acres)
5.0
-
Property Type
Residential
-
Property Sub Type
Single Family Residence
-
Architectural Style
Custom, Ranch, Traditional
Price
-
Sales Price
$1,795,000
-
Tax Amount
8037.51
-
Sq. Footage
2, 433
-
Price/SqFt
$737
HOA
-
Association
NO
School District
-
Elementary School
Lakeview Elementary
-
Middle School
Sarasota Middle
-
High School
Riverview High
Property Features
-
Stories
1
-
Foundation Details
Slab
-
Ownership
Fee Simple
-
Senior Community YN
NO
-
Sewer
Septic Tank
-
Tax Lot
0
-
Water Source
Private, Well
Schedule a Showing
Showing scheduled successfully.
Mortgage calculator
Estimate your monthly mortgage payment, including the principal and interest, property taxes, and HOA. Adjust the values to generate a more accurate rate.
Your payment
Principal and Interest:
$
Property taxes:
$
HOA fees:
$
Total loan payment:
$
Total interest amount:
$
Location
County
Sarasota
Elementary School
Lakeview Elementary
Middle School
Sarasota Middle
High School
Riverview High
Listing Courtesy of Michelle Ward , COMPASS FLORIDA LLC
RealHub Information is provided exclusively for consumers' personal, non-commercial use, and it may not be used for any purpose other than to identify prospective properties consumers may be interested in purchasing. All information deemed reliable but not guaranteed and should be independently verified. All properties are subject to prior sale, change or withdrawal. RealHub website owner shall not be responsible for any typographical errors, misinformation, misprints and shall be held totally harmless.

Business Coach | Executive Sales Associate | Realtor®
MichaelGraf
Call Michael today to schedule a private showing.

* Listings on this website come from the FMLS IDX Compilation and may be held by brokerage firms other than the owner of this website. The listing brokerage is identified in any listing details. Information is deemed reliable but is not guaranteed. If you believe any FMLS listing contains material that infringes your copyrighted work please click here to review our DMCA policy and learn how to submit a takedown request.© 2024 FMLS.
