Property
Beds
10
Full Baths
10
1/2 Baths
None
Year Built
2015
Sq.Footage
4,707
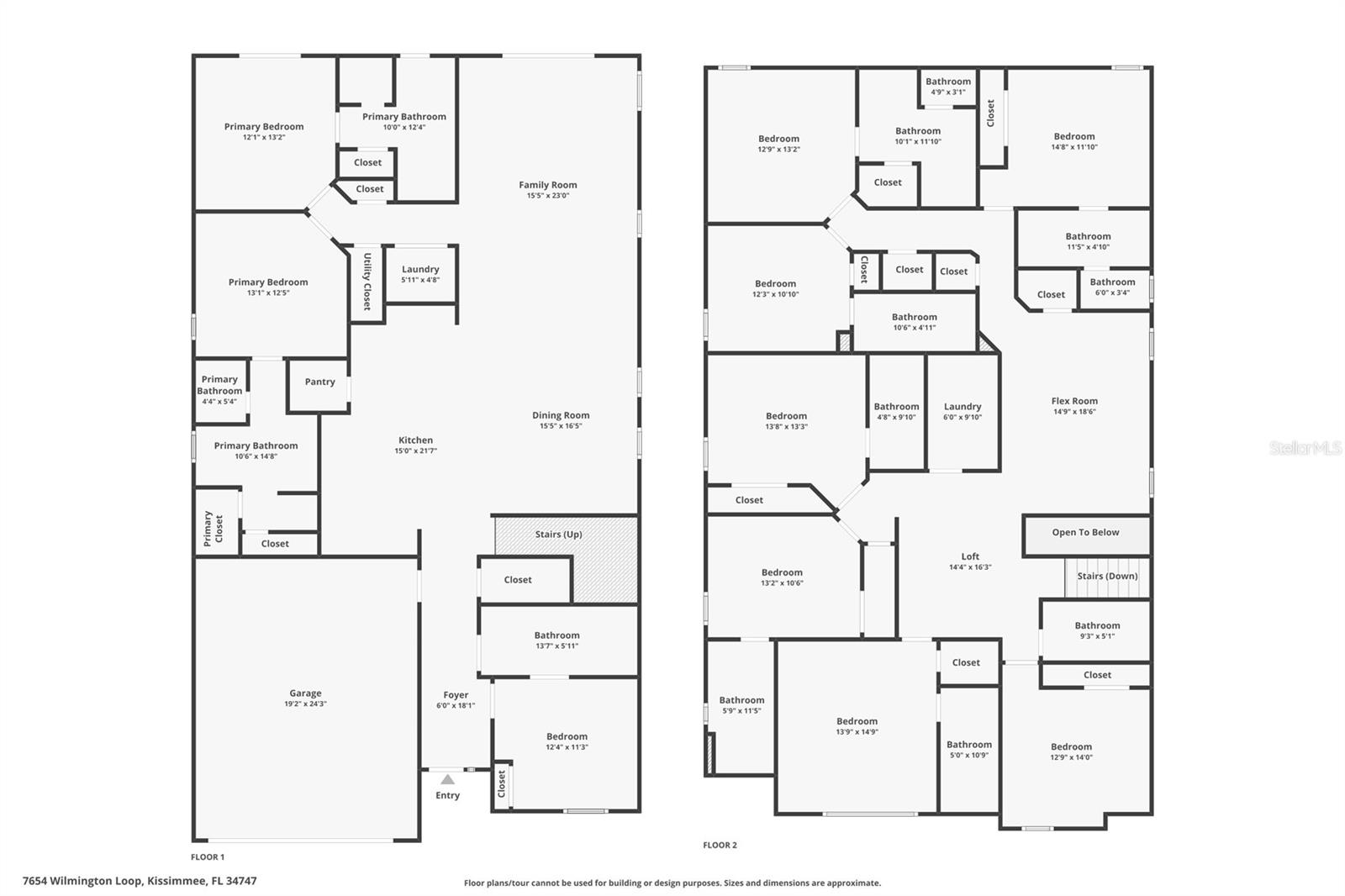
Discover this DISNEY DELIGHT VACATION VILLA where every stay feels like a CELEBRATION! This spectacular 10-BEDROOM, 10-BATHROOM property located in highly sought after ENCORE AT REUNION RESORT, minutes from Orlando’s world-famous theme parks, is designed to deliver the seamless blend of MAGICAL VACATION MEMORIES and UNPARALLELED INVESTMENT OPPORTUNITY. A rare chance to acquire a high-quality asset at an exceptional price. With it’s IMMERSIVE MURALS, PROFESSIONALLY DESIGNED THEMED ROOMS, desirable BRIGHT COASTAL INTERIORS, and luxurious AMENITIES, this dream VACATION HOME is an upscale resort-style retreat positioned to capitalize on the the anticipated tourism from newly opened EPIC UNIVERSE and DISNEY PARKS significant expansions. FRESHLY PAINTED INTERIORS AND EXTERIORS (October 2025) create a bright, refreshed atmosphere complemented by NEW FURNISHINGS, NEWLY EPOXIED GARAGE FLOOR, & FRESHLY CLEANED TILE. With its FULLY FURNISHED, TURN-KEY DESIGN, this home is ready for immediate enjoyment or effortless short-term rental success. Designed to host large gatherings, the floor plan is impressive & functional. THREE PRIMARY SUITES; two located downstairs & one upstairs, offer luxurious retreats while ENSUITE SPA-LIKE baths provide ultimate privacy. Many with dual sinks, garden tubs, & natural light. The OPEN-CONCEPT great room & dining area flow into the kitchen with GRANITE COUNTERS, 42-inch shaker style cabinetry, coffee bar, DUAL STAINLESS-STEEL REFRIGERATORS and DISHWASHERS, and Breakfast Bar. Dual Laundry Rooms upstairs & down offer further convenience. Upstairs, the experience grows even more enchanting. IMMERSIVE THEMED ROOMS bring childhood dreams to life; HARRY POTTER’S CHAMBER OF SECRETS, ELSA’S ENCHANTED LOFT, and the SUPERHERO SANCTUARY are professionally designed with 360-degree murals and custom detailed loftstyle beds. The STAR WARS SCREENING ROOM offers a cinematic escape with projector, surround sound, and reclining leather sectional. A nearby ENTERTAINMENT LOFT with foosball and TV adds extra fun. Floor to ceiling sliding doors open to your PRIVATE OUTDOOR OASIS featuring large covered lanai, spacious paver patio and lawn, HEATED POOL AND SPA surrounded by tropical landscaping, fenced yard, NO REAR NEIGHBORS, and SERENE POND VIEWS. Whether sipping morning coffee by the pool or enjoying a sunset swim, every moment feels like a resort escape. Located a short walk from Encore’s exclusive amenities, you’ll enjoy access to a 10-acre waterpark with exhilarating slides, splash pad, poolside cabanas, fitness center, courts for tennis, volleyball, and basketball, a full soccer field, casual on-site dining & bar, concierge desk, and complimentary transportation to Disney, Universal & SeaWorld. The HOA covers internet, cable, landscaping, irrigation, pest control, community maintenance, and 24-hour manned security-simplifying ownership while maximizing returns. This home is COMPLETELY TURN-KEY, ready to start generating income from day one. With its high occupancy potential, strong nightly rate projections, and prime location this home offers exceptional earning capacity for investors. Whether you’re looking to generate income or create a personal retreat that pays for itself, this property provides the best of both worlds. Don’t miss your chance to own a proven income-generating property in the heart of Orlando’s thriving vacation rental market. Schedule your private showing today and start enjoying returns the day you close!
Features & Amenities
Interior
-
Other Interior Features
Dry Bar, Eat-in Kitchen, High Ceilings, Open Floorplan, Stone Counters, Walk-In Closet(s)
-
Total Bedrooms
10
-
Bathrooms
10
-
Cooling YN
YES
-
Cooling
Central Air
-
Fireplace YN
NO
-
Heating YN
YES
-
Heating
Heat Pump
-
Pet friendly
Cats OK, Dogs OK
Exterior
-
Garage
Yes
-
Garage spaces
2
-
Construction Materials
Stucco
-
Other Exterior Features
Lighting, Outdoor Grill
-
Parking
Attached
-
Patio and Porch Features
Covered, Deck, Rear Porch
-
Pool
Yes
-
Pool Features
Gunite, Heated, In Ground, Tile, Private
-
Waterfront YN
NO
-
View
Pond, Water
Area & Lot
-
Lot Features
Landscaped, Level
-
Lot Size(acres)
0.17
-
Property Type
Residential
-
Property Sub Type
Single Family Residence
-
Architectural Style
Florida, Traditional
Price
-
Sales Price
$959,000
-
Tax Amount
15021.72
-
Sq. Footage
4, 707
-
Price/SqFt
$203
HOA
-
Association
YES
-
Association Fee
$783
-
Association Fee Frequency
Monthly
-
Association Fee Includes
N/A
School District
-
Elementary School
Westside K-8
-
Middle School
West Side
-
High School
Poinciana High School
Property Features
-
Stories
2
-
Accessibility Features
Accessible Entrance, Accessible Full Bath
-
Association Amenities
Basketball Court, Cable TV, Clubhouse, Fitness Center, Gated, Park, Playground, Pool, Recreation Facilities, Tennis Court(s)
-
Foundation Details
Slab
-
Ownership
Fee Simple
-
Senior Community YN
NO
-
Sewer
Public Sewer
-
Tax Lot
55
-
Water Source
Public
Schedule a Showing
Showing scheduled successfully.
Mortgage calculator
Estimate your monthly mortgage payment, including the principal and interest, property taxes, and HOA. Adjust the values to generate a more accurate rate.
Your payment
Principal and Interest:
$
Property taxes:
$
HOA fees:
$
Total loan payment:
$
Total interest amount:
$
Location
County
Osceola
Elementary School
Westside K-8
Middle School
West Side
High School
Poinciana High School
Listing Courtesy of Erin Underkofler Kilpatrick, PA , EXP REALTY LLC
RealHub Information is provided exclusively for consumers' personal, non-commercial use, and it may not be used for any purpose other than to identify prospective properties consumers may be interested in purchasing. All information deemed reliable but not guaranteed and should be independently verified. All properties are subject to prior sale, change or withdrawal. RealHub website owner shall not be responsible for any typographical errors, misinformation, misprints and shall be held totally harmless.

Business Coach | Executive Sales Associate | Realtor®
MichaelGraf
Call Michael today to schedule a private showing.

* Listings on this website come from the FMLS IDX Compilation and may be held by brokerage firms other than the owner of this website. The listing brokerage is identified in any listing details. Information is deemed reliable but is not guaranteed. If you believe any FMLS listing contains material that infringes your copyrighted work please click here to review our DMCA policy and learn how to submit a takedown request.© 2024 FMLS.
