Property
Beds
None
Full Baths
None
1/2 Baths
None
Year Built
2007
Sq.Footage
5,550
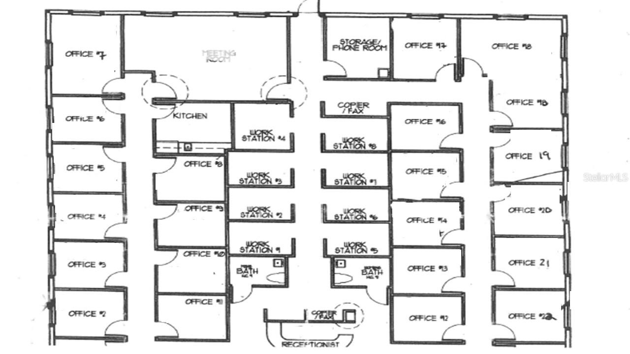
This office building is quite a unique find and exceptionally well-located on Tamiami Trail, near Sumter Boulevard in North Port. It features extensive parking facilities both at the front and rear, with convenient access from Tamiami Trail and an additional entrance connecting to Sumter Boulevard in the back. The interior includes approximately 20 office spaces/work stations, a meeting room, a storage/phone room, a copy area, a kitchen area, and two restrooms. Additionally, the building boasts a highly professional reception area upon entry. Request your showing today! Activity Center 1, located along US-41, is an established commercial corridor. The AC-1 district supports commercial, light industrial, office and retail use to provide employment and amenities to the adjacent residential neighborhoods. Environmental conservation and government uses, including public schools, shall also be allowed.
Features & Amenities
Interior
-
Total Bedrooms
N/A
-
Bathrooms
N/A
-
Cooling YN
YES
-
Cooling
Central Air
-
Pet friendly
N/A
Exterior
-
Garage
No
-
Construction Materials
Stucco
-
Pool
No
-
Waterfront YN
NO
Area & Lot
-
Lot Size(acres)
0.69
-
Property Type
Commercial Sale
-
Property Sub Type
Office
Price
-
Sales Price
$1,400,000
-
Tax Amount
18685.63
-
Sq. Footage
5, 550
-
Price/SqFt
$252
HOA
-
Association
No
School District
-
Elementary School
N/A
-
Middle School
N/A
-
High School
N/A
Property Features
-
Stories
1
-
Foundation Details
Slab
-
Ownership
Other
-
Tax Lot
2
Schedule a Showing
Showing scheduled successfully.
Mortgage calculator
Estimate your monthly mortgage payment, including the principal and interest, property taxes, and HOA. Adjust the values to generate a more accurate rate.
Your payment
Principal and Interest:
$
Property taxes:
$
HOA fees:
$
Total loan payment:
$
Total interest amount:
$
Location
County
Sarasota
Elementary School
Middle School
High School
Listing Courtesy of Howard Corr , CORR COMMERCIAL ADVISORS LLC
RealHub Information is provided exclusively for consumers' personal, non-commercial use, and it may not be used for any purpose other than to identify prospective properties consumers may be interested in purchasing. All information deemed reliable but not guaranteed and should be independently verified. All properties are subject to prior sale, change or withdrawal. RealHub website owner shall not be responsible for any typographical errors, misinformation, misprints and shall be held totally harmless.

Business Coach | Executive Sales Associate | Realtor®
MichaelGraf
Call Michael today to schedule a private showing.

* Listings on this website come from the FMLS IDX Compilation and may be held by brokerage firms other than the owner of this website. The listing brokerage is identified in any listing details. Information is deemed reliable but is not guaranteed. If you believe any FMLS listing contains material that infringes your copyrighted work please click here to review our DMCA policy and learn how to submit a takedown request.© 2024 FMLS.
